Documentação Necessária
Certifique-se que possui os seguintes documentos para entregar ao Perito Qualificado Bosch:
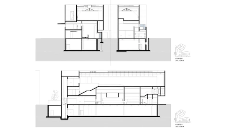
Planta do Edifício/Fração
Planta, alçados e cortes, à escala e legível;
planta_do_edificio_fracao (JPG 0.1 MB) (JPG 0.1 MB)
Cópia da Caderneta Predial das Finanças
Copia_da_caderneta_predial_das_financas (JPG 0.3 MB) (JPG 0.2 MB)
Cópia da Certidão de registo na conservatória
Exemplo Certidão de registo na conservatória (PDF 0.6 MB)
Fatura de energia elétrica
Fatura_de_energia_eletrica (JPG 0.1 MB) (JPG 0.1 MB)
Cópia da ficha técnica da habitação (aplicável para imóveis posteriores a 2004)
Copia_da_ficha_tecnica_da_habitacao (GIF 0.2 MB) (GIF 0.2 MB)
Certificação dos coletores solares térmicos (se aplicável)
Certificacao_dos_coletores_solares_termicos (PDF 2.0 MB)
Contrato de manutenção do sistema solar térmico (se aplicável)
Certificação dos coletores solares térmicos (se aplicável) (PDF 0.1 MB)
Dados técnicos dos sistemas de climatização e águas quentes
(JPG 0.1 MB) (PNG 0.7 MB)